Solar das Oliveiras

Santa Maria / RS
2018

Solar das Oliveiras

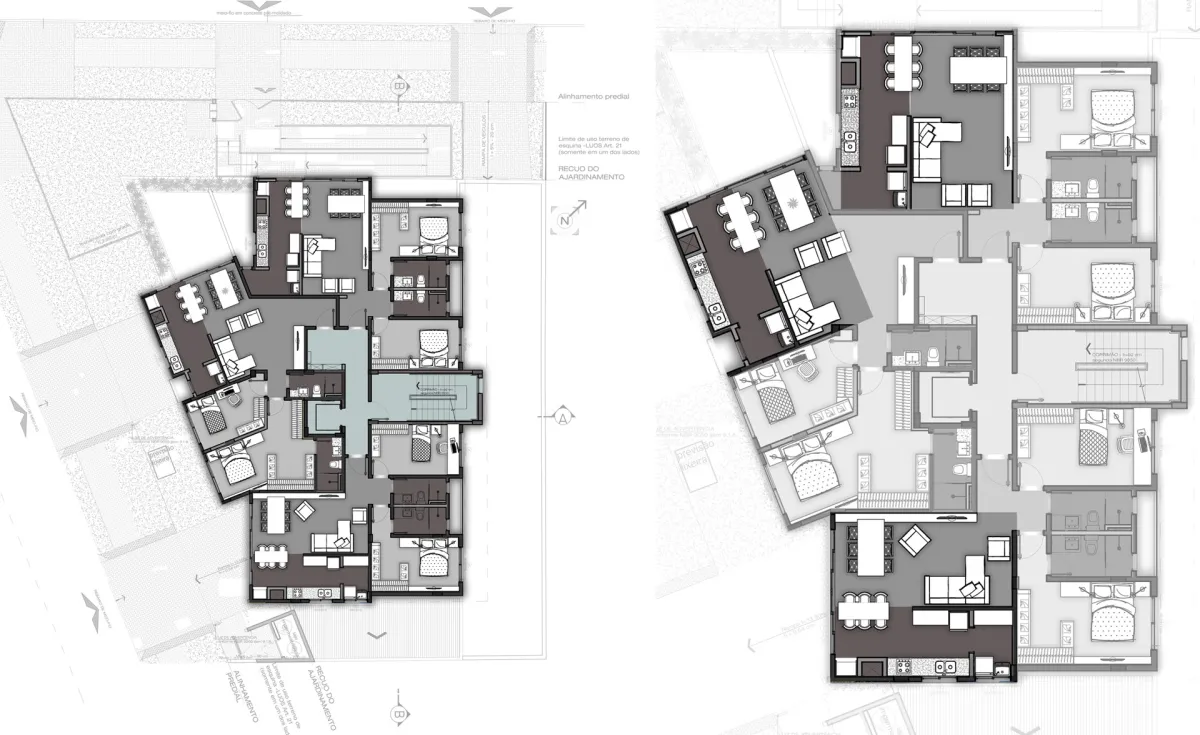
A sala vira sacada, um módulo de área social e cozinha da forma á edificação.

 

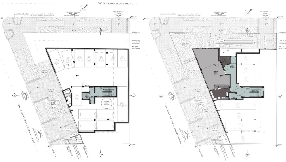
O Residencial Solar das Oliveiras fica em um terreno com ângulo agudo, condicionante inicial de projeto e o qual foi tirado partido para lançamento compositivo e funcional. A edificação aproveita a esquina e desenvolve os ambientes de estar de forma a aproveitar as visuais para a rua, criando o sentimento de vizinhança e aproveitando o declive do terreno e as vistas existentes.

 

O destaque deste projeto é o módulo de convivência que foi desenvolvido e aplicado nos três apartamentos. Este módulo engloba estar, jantar, cozinha e churrasqueira, além de uma esquadria que ocupa quase todo o vão deste módulo, com peitoril vazado externo que transforma a sala em uma varanda/sacada. Para nós, esse módulo representa resolver a condição contemporânea de convívio na nossa região, integrando churrasqueira, sala e varanda/sacada, sem deixar de lado as grandes variações térmicas do nosso clima, que muitas vezes não permite uma varanda aberta permanentemente.

 

Fotos por Vitor Ceolin