Residência AP

Santa Maria / RS
2013

Residência AP

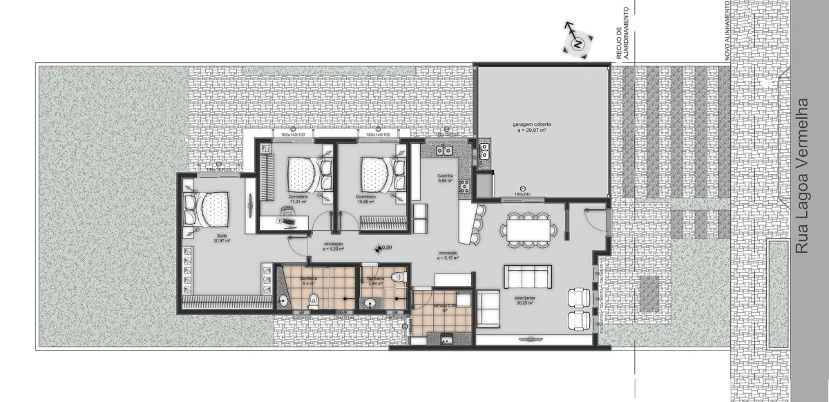
Residência AP possui cerca de 160 m² e tem como foco a discrição e o conforto.

 

A composição foi proposta de forma a aliar as referências e anseios trazidos pelos clientes ao entorno imediato à residência e à linguagem contemporânea buscada pela equipe LP Arquitetos. A residência possui pouca relação com o logradouro público, com apenas 3 esquadrias que controlam iluminação e ventilação para o espaço social.

 

Ao mesmo tempo o espaço social é amplo e integrado, possibilitando uma relação entre cozinha, jantar e estar, estabelecendo uma área de convívio em família. Todos os dormitórios estão localizados à norte e possuem esquadrias com vidro duplo, enquanto os sanitários possuem aberturas à sul. A área social ainda pode ser integrada à garagem, quando necessário, que é equipada com churrasqueira e pia de apoio e apresenta conexão direta com a cozinha.

 

Fotos por Nathália Schneider