Residência BM

Santa Maria / RS
2022

Residência BM

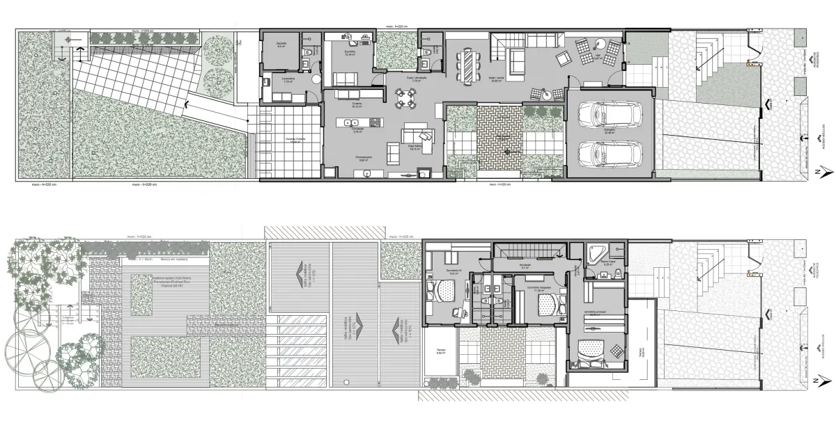
É em um terreno estreito e profundo do Bairro Nossa Senhora de Fátima que a residência BM se desenvolve.

 

Com um programa de 280 m² de área construída, o projeto se organiza de forma a percorrer e se adaptar ao terreno estreito, usando do artifício possibilitado pela legislação, de encostar nas divisas laterais, ora em ambas, ora em uma delas.

 

Essa estratégia gera espaços abertos que articulam a iluminação natural, ventilação, circulação e integração dos ambientes internos da residência, criando um total de 4 pátios na residência: o frontal, o de fundos e outros dois pátios internos.

 

No primeiro pavimento da residência está situada a área social e de convívio, enquanto o segundo pavimento é destinado à área íntima, na qual estão localizadas as três suítes.