Oswald de Andrade

Santa Maria / RS
2015

Oswald de Andrade

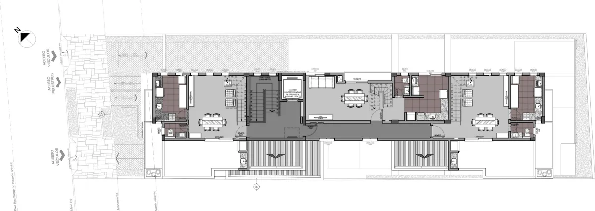
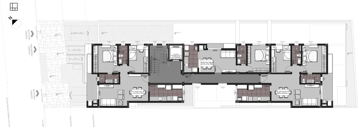
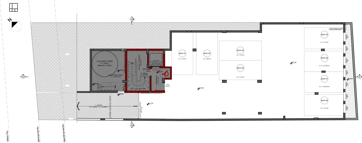
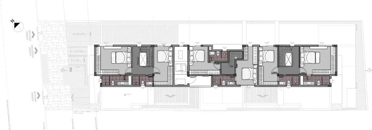
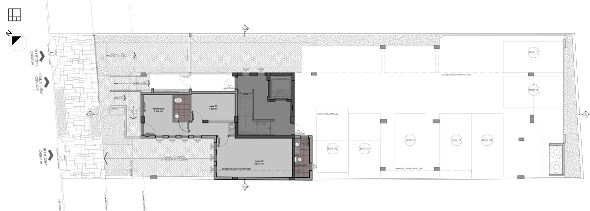
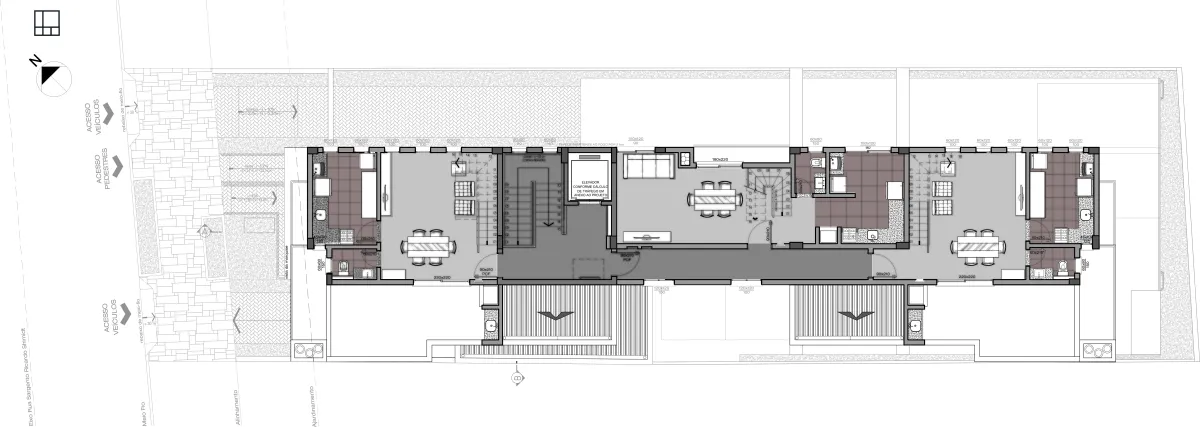
Edifício de 6 pavimentos com diferentes tipos de unidades autônomas em um terreno compatcto.

 

Projeto da LP arquitetos, essa pequena edificação esconde uma complexidade de utilidades. Possui desde apartamentos duplex, com terraço, apartamentos de 1 e 2 dormitórios e até uma sala comercial.

 

Como padrão de projeto da LP arquitetos, as unidades de ar condicionados não aparecem na fachada, tendo sido deixadas esperas com fáceis acessos para instalação e manutenção. A insolação de todos os dormitórios da edificação é o nordeste, agradável orientação em todas as estações do ano. O branco e cinza contrastam com o vermelho do revestimento cerâmico.

 

Fotos: Nathália Schneider